Voltar
para lista

Prédio Comercial, 8 Dorms à Venda, Sacomã, 400 m² por R$ 1.400.000,00

Sacomã - São Paulo - Zona Sul

R$ 1.400.000,00

  • Valor m²: R$ 3.500
8 quartos
- suíte
10 vagas
400 m²
8 quartos
- suíte
10 vagas
400 m²
Atualizado em: 04/12/2025 | Código: aur3

Sacomã - São Paulo - Zona Sul

Descrição do Imóvel

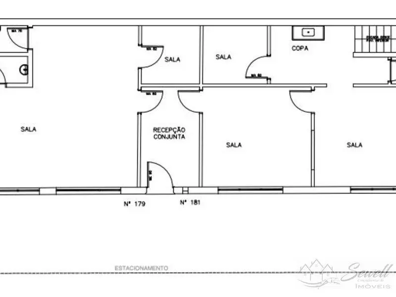
Pre´dio Inteiro bem localizado para venda e aluguel em SP - Sa~o Paulo com 416m2.
O imo´vel Inteiro possui 8 salas, 3 copas, 6 wcs, 15 vagas entre cobertas e descobertas
Se voce^ esta´ em busca de um investimento seguro e com potencial de valorizac¸a~o, este pre´dio comercial no bairro Sacoma~, na vibrante cidade de Sa~o Paulo, e´ a oportunidade perfeita. Localizado na regia~o sul da cidade, o imo´vel oferece uma estrutura so´lida e versa´til, ideal para diversos tipos de nego´cios. Com tre^s pavimentos bem distribui´dos, o pre´dio possui uma a´rea construi´da de 416 metros quadrados em um terreno de 300 metros quadrados. O te´rreo conta com 170 metros quadrados, proporcionando um espac¸o amplo e funcional para o seu empreendimento. Ja´ o primeiro pavimento oferece 143 metros quadrados que podem ser adaptados conforme suas necessidades, a garagem descoberta 13mts, coberta 90mts.
Um dos grandes diferenciais deste imo´vel e´ a sua localizac¸a~o privilegiada. Situado em uma rua larga e tranquila, o pre´dio conta com uma garagem coberta de 90 metros quadrados com acesso direto pela rua principal. Ale´m disso, a frente do edifi´cio acomoda ate´ dez vagas de estacionamento exclusivas para seus clientes ou funciona´rios. Isso sem mencionar que a parte superior do pre´dio esta´ equipada com ar condicionado em tre^s salas distintas, garantindo conforto te´rmico durante todo o ano. O telhado foi totalmente reformado recentemente, assegurando na~o apenas seguranc¸a estrutural como tambe´m eficie^ncia energe´tica.
A condic¸a~o interna do pre´dio e´ impeca´vel, pronta para receber seu nego´cio sem necessidade imediata de reformas ou adaptac¸o~es significativas. Imagine instalar sua empresa em um espac¸o onde cada detalhe foi pensado para maximizar a praticidade e o conforto! Seja para expandir um nego´cio ja´ existente ou iniciar uma nova empreitada comercial, este imo´vel no Sacoma~ representa uma combinac¸a~o ideal entre localizac¸a~o estrate´gica e infraestrutura robusta. Na~o perca essa chance u´nica de investir em um patrimo^nio que pode se tornar a base so´lida para o sucesso do seu empreendimento.



Chave do anúncio: ZLNS9tM353AeMFRu

Todas as informações deste anúncio são fornecidas pelo anunciante.
O Portal ZS Imóvel fica isento de qualquer responsabilidade.
Creci - Procure sempre um corretor credenciado.

Blog do Grupo SP Imóvel

Confira a ampla pesquisa que realizamos sobre financiamento imobiliário em nosso blog. Clique nos links abaixo:
Contate o anunciante


Visualizações do imóvel
61 pessoas visualizaram esse imóvel recentemente
CRECI: 27.122-J

Sewell Consultoria de Imóveis


Ver telefone e
dados do anunciante
(11) 9584...
(11) 95847-8888
Contate o anunciante
Código do imóvel:
aur3
Ao ligar, diga que viu este
anúncio no Portal ZS Imóvel
Endereço do anunciante:


Sacomã - São Paulo

Anúncios encontrados 38 anúncios encontrados
Tempo de cadastro da imobiliária Desde julho de 2025
Contate o anunciante